Micetro

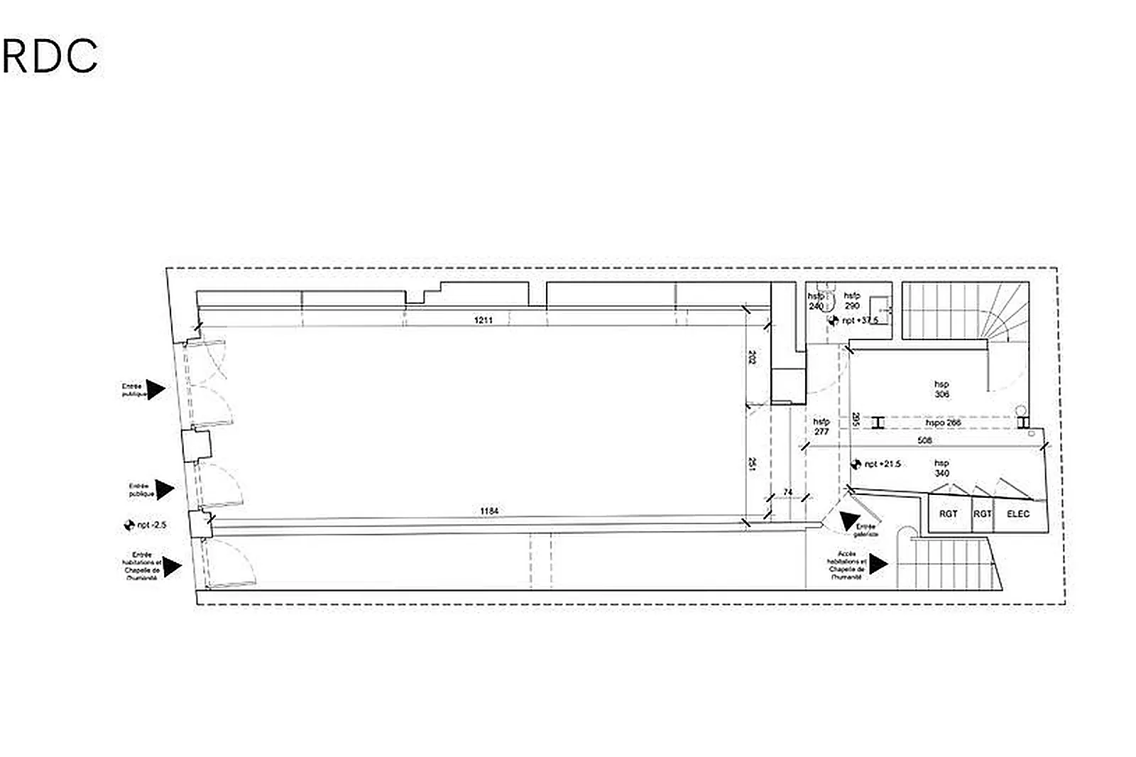
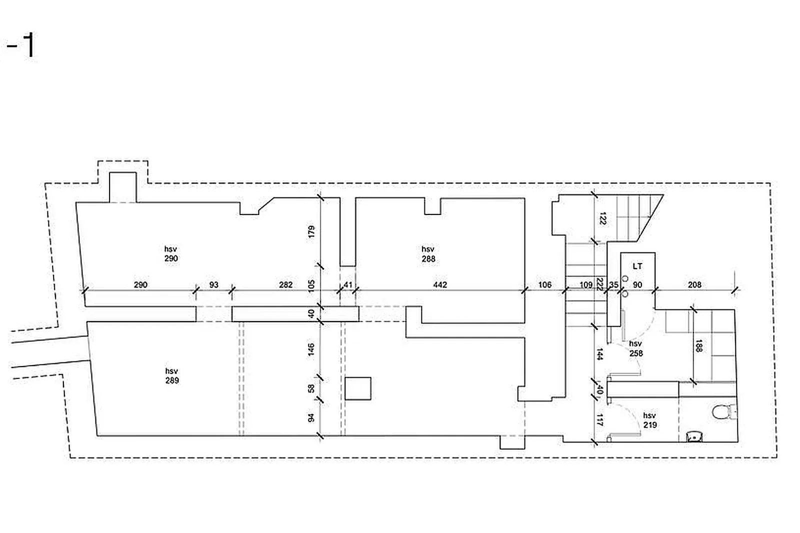
GALERIE JOSEPH - PAYENNE | Paris   (75003)

capacité max

40

capacité max

salles de réunion

1

salles de réunion

Capacité des salles

Galerie Joseph - 84 Turenne (80m2)
80m²
Réunion 0
En U 0
Rangs d'école 0
Conférence 0
Cabaret 0
Banquet 0
Cocktail 40
Soleil ?